Коттеджные посёлки Загородные дома Земельные участки

SPEC
УЧАСТКИ
НА КУРОРТЕ
OASIS
ZAVIDOVO
3,5 млн
от 10 соток

Продажа загородного дома Щёлковское шоссе (Московская область)56 км. от МКАД

Объект #58723137 Размещено: 17 октября 2025, 06:01 45

Стромынь (Ногинский район)

7 720 000 Р
Щёлковское шоссе

56 км. от МКАД

Район: Ногинский
Населенный пункт: Стромынь, Заречная

Контактная информация

Продавец Анастасия Вячеславовна 
Телефон Показать телефон
Организация Подмосковные вечера 

Характеристики и местоположение

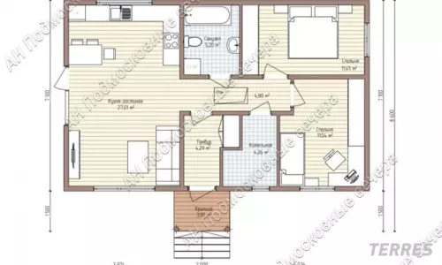
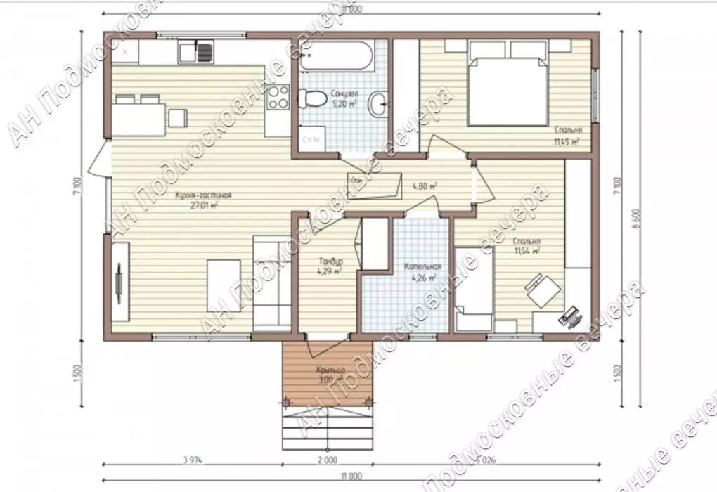
Тип недвижимости Дом
Конструктив дома Иной,  

Участок

Площадь участка 81 сот.
Вид разрешенного использования Индивидуальное жилищное строительство

Дом

Площадь дома 81 м2
Количество этажей 1  
Бассейн Есть

Коммуникации

Электричество Есть
Газ Есть  

Дополнительная информация

Щелковское или Горьковское шоссе 56 км от МКАД, село Стромынь. Дом 81 кв. м, участок 81 сотка. Дом 81 кв. м, 1 этаж, материал брус. Участок 15 соток / фактически 81 сотка / ИЖС (личное подсобное хозяйство) / земли населенных пунктов. Административная принадлежность: Московская область, Богородский городской округ (Ногинский район). Новый современный дом 81м на сухом участке 15сот в тихом, экологически чистом с. Стромынь. Подходит под семейную ипотеку и мат. капитал!Современная канадская технология. Идеальная геометрия и заводская сборка. Качественные материалы. Очень теплый и прочный дом для постоянного проживания. Надёжный фундамент: железо-бетонные сваи. Презентабельный фасад под ключ: сайдинг под клееный брус Dосkе. Отличная и продуманная планировка с 2-мя спальнями и большой кухней-гостиной. Из гостиной есть выход на террасу. Дом сдается под чистовую отделку (ровный пол и ровные стены). Все коммуникации под ключ - электрика АВВ, радиаторы отопления, канализация, вентиляция, водоснабжение. Качественные окна RЕНАU, 5 камер, 3 стекла, профиль 70 мм. В 5 минутах пешком: автобусная остановка (автобусы до Черноголовки, Москвы, а так же проходят два школьных автобуса для детей); сетевые продуктовые (Пятерочка, Верный, Магнит); WB, Ozon, Аптека. Недалеко находится ресторанный дворик "Царская усадьба", Успенская церковь, два строительных рынка и один садовый. Рядом лес. Удобная транспортная доступность до ЦКАД. Этот дом можно купить в ипотеку. Оперативный показ по предварительной договоренности. Быстрый выход на сделку. С нашей стороны — гарантия юридической чистоты объекта, прозрачности сделки, наличия всех документов. Юридическое сопровождение. Безопасность расчетов. Бесплатная консультация у менеджеров. Звоните!


Комментарии и отзывы

Все отзывы(0)

Похожие предложения

Смоленск
7 690 000 Р

0 км. от МКАД
Площадь дома, м2140
Площадь участка,сот.8
сп. Ждановский
7 835 000 Р

0 км. от МКАД
Площадь дома, м2106
Площадь участка,сот.7
деревня Кожевенное
7 835 000 Р

0 км. от МКАД
Площадь дома, м2106
Площадь участка,сот.7

Новости загородной недвижимости

Загородная недвижимость
Новая Москва
Класс поселков
Разделы
Справочники
TERRES
© 2013 - 2025 Terres.ru - Загородная недвижимость. Все права защищены. Найти поселок
Обращаем ваше внимание на то, что данный интернет-сайт носит исключительно информационный характер и ни при каких условиях не является публичной офертой, определяемой положениями Статьи 437 Гражданского кодекса Российской Федерации.