Коттеджные посёлки Загородные дома Земельные участки

Продажа загородного дома (Псковская область)

Объект #58723120 Размещено: 4 декабря 2025, 07:28 73

Псков

9 200 000 Р

Населенный пункт: Псков, Парковый переулок, д.5А

Контактная информация

Продавец Татьяна 
Телефон Показать телефон
Организация Информационный центр Псковская недвижимость 

Характеристики и местоположение

Тип недвижимости Дом
Конструктив дома Кирпич,  

Участок

Площадь участка 5,88 сот.
Вид разрешенного использования Индивидуальное жилищное строительство

Дом

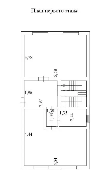
Площадь дома 183 м2
Дата окончания строительства 2007 г
Количество этажей 3  
Внутренняя отделка Под ключ  
Мебель Полностью меблирован
Количество комнат 5  

Коммуникации

Электричество Есть
Газ Есть  
Отопление Есть
Водоснабжение Есть
Канализация Есть  
Прочие коммуникации в доме Интернет, Телефон 

Дополнительная информация

В тихом спокойном месте недалеко от реки в центре города продается чудесный дом полностью готовый к проживанию. Остаётся только завезти свою мебель. В доме зарегистрировано 3 этажа, один из них подвальный. Общая площадь 183 кв.м. Полностью кирпичный. Толщина стен 2,5 кирпича с утеплением. 2007 год постройки. Кадастровый номер: 60:27:0060416:165. На 1 этаже: - большая комната-зал 21,1 кв.м, - просторная кухня-гостиная 21,5 кв.м, - санузел с душевой кабиной. На 2 этаже: - 4 комнаты, используемые под спальню, детские и рабочий кабинет, - санузел с ванной, - кладовая, - есть выход на чердак, где можно оборудовать ещё одну комнату, - установлена дверь выхода на террасу, которую планировалось пристроить. В подвале: - два больших помещения, - инженерные системы водоснабжения, канализации. Отоплeниe от двухконтурного гaзoвoго котла Вахi. Водоснабжение - скважина 20 м. Канализация - септик. Участок 5,88 сот. Кадастровый номер: 60:27:0060416:169. Категория: земли населенных пунктов, вид разрешенного использования: для использования под индивидуальную жилую застройку. Возможность увеличения размера в 2 раза. Вся необходимая для комфортной жизни инфраструктура в шаговой доступности. Подходит как для собственного проживания, так и для сдачи в аренду. Документы готовы к продаже. Один взрослый собственник. Прямая продажа. Любая форма расчета: ипотека, материнский капитал, различные сертификаты. Полное юридическое сопровождение сделки. Звоните, смотрите, покупайте!!!


Комментарии и отзывы

Все отзывы(0)
Войдите или Зарегистрируйтесь
Чтобы оставить комментарий или отзыв

Похожие предложения

хутор Семигорский
8 400 000 Р

0 км. от МКАД
Площадь дома, м285
Площадь участка,сот.4
деревня Кожевенное
7 835 000 Р

0 км. от МКАД
Площадь дома, м2106
Площадь участка,сот.7
деревня Опалиха
10 235 000 Р

0 км. от МКАД
Площадь дома, м2106
Площадь участка,сот.7

Новости загородной недвижимости

Загородная недвижимость
Новая Москва
Класс поселков
Разделы
Участники рынка
Справочники
TERRES
© 2013 - 2025 Terres.ru - Загородная недвижимость. Все права защищены. Найти поселок
Обращаем ваше внимание на то, что данный интернет-сайт носит исключительно информационный характер и ни при каких условиях не является публичной офертой, определяемой положениями Статьи 437 Гражданского кодекса Российской Федерации.